Przystąpiliśmy do ogólnopolskiego programu mieszkaniowego

Radni naszej gminy podjęli uchwałę o przystąpieniu do spółki Społeczna Inicjatywa Mieszkaniowa „KZN-Pomorze”, która swoim funkcjonowaniem przypominać będzie działalność TBS. Będzie to szansa na mieszkanie dla naszych mieszkańców, których nie stać na kredyt hipoteczny, ale mają stałe zatrudnienie i mogą płacić czynsz.

Program Społecznych Inicjatyw Mieszkaniowych to pomysł rządowy. To właśnie ze środków centralnych będzie można pozyskać na inwestycję mieszkaniową nawet 60 proc. kosztów przedsięwzięcia. Partnerem mają być samorządy, które – tak jak nasza gmina – przystępują właśnie do spółki Społeczna Inicjatywa Mieszkaniowa ,,KZN-Pomorze”. Swój wkład – np. w postanie nieruchomości – wnieść też będą musiały gminy, ale swoją cegiełkę dołożyć mają również zainteresowani mieszkaniami lokatorzy.

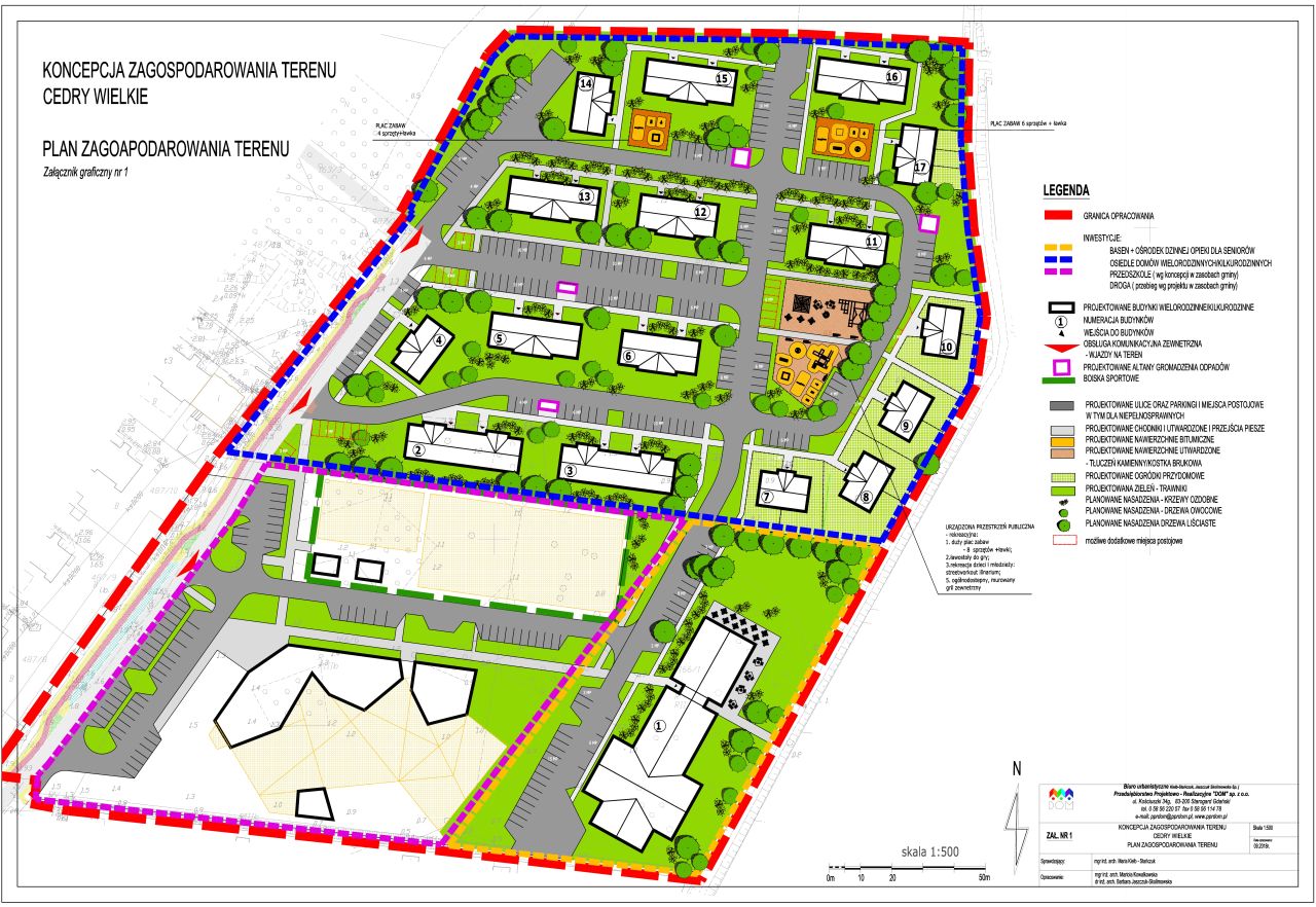
- Na terenie naszej gminy wydzielone zostały już tereny przeznaczone pod budownictwo mieszkaniowe. Na poczet spółki trafi jedna z działek w Cedrach Wielkich. Znajduje się ona w sąsiedztwie przedszkola, którego budowa ma rozpocząć się jeszcze w tym roku – informuje Janusz Goliński.

Radni naszej gminy podjęli jeszcze jedną uchwałę związaną z Społeczną Inicjatywą Mieszkaniową, która pozwala złożyć wniosek o pozyskanie rządowego wsparcia na realizację przyszłej inwestycji mieszkaniowej.

Mieszkania w ramach SIM mogą interesować szczególnie młodych ludzi, dla których kupno nieruchomości pozostaje często w sferze marzeń.

Tylko nieliczni mogą pozwolić sobie na kupno własnego „M”. Inicjatywa na pewno pomoże tym, których nie stać na budowę własnego mieszkania albo zaciągnięcie kredytu, ale mają stałą pracę i mogą regularnie płacić czynsz – zauważa Janusz Goliński, wójt gminy Cedry Wielkie.

Autorzy programu założyli, że w budowie mieszkań partycypować będą trzy strony: rząd, spółka (którą stworzą samorządy) oraz najemcy, którzy z czasem będą mieli możliwość wykupienia mieszkania. Stosunkowo niski ma być również czynsz, ponieważ – według szacunków – ma on wynosić 12 zł/m 2 . Jest to kwota niższa od tych proponowanych na komercyjnym rynku nieruchomości.

Plan zagospodarowania terenu